Emprendimientos

Casa Hudson GK

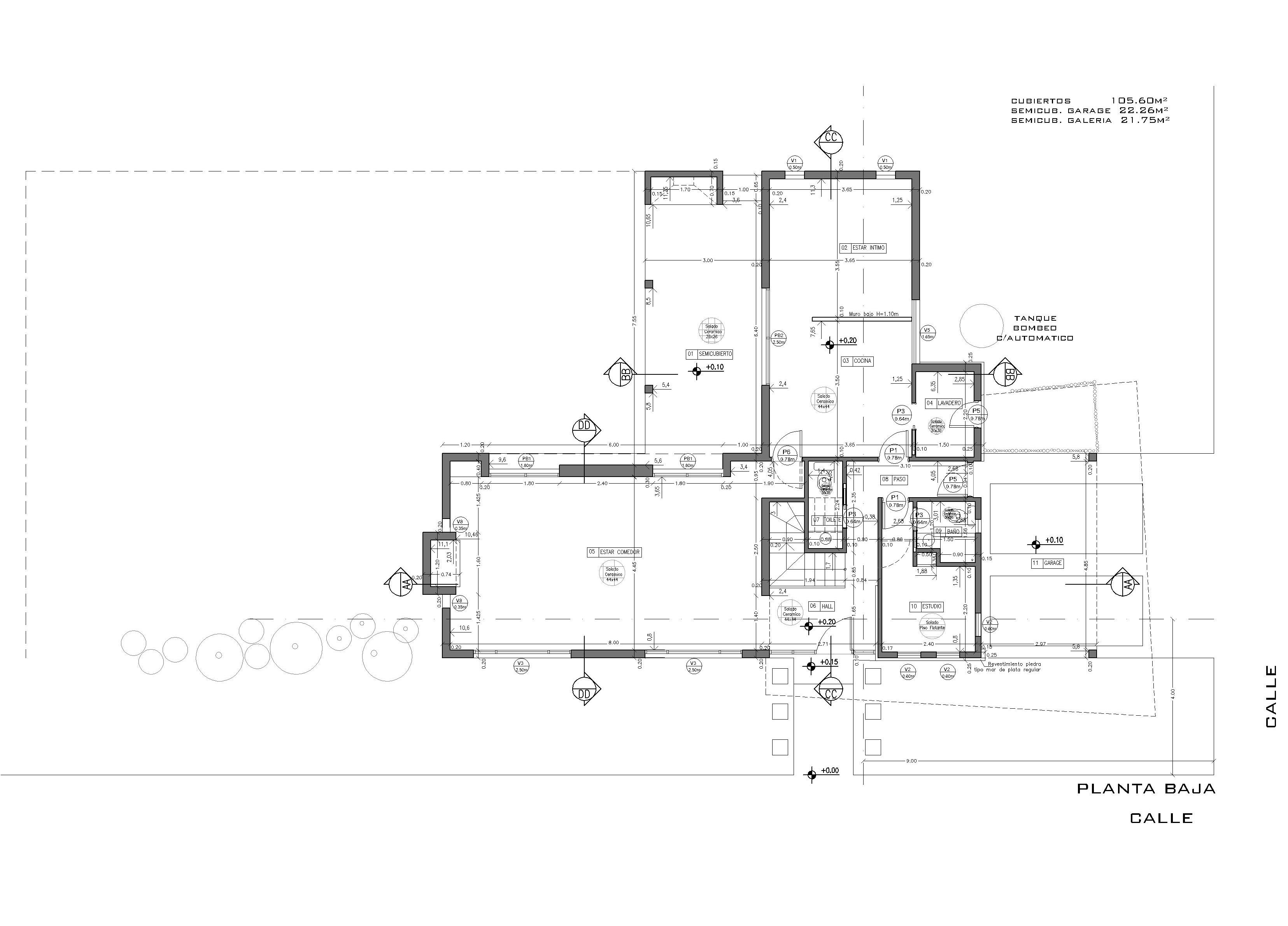
Casa en barrio privado, de 250m2 , 210m2 cubieros 40semicub.semicubiertos y otros 30 de una gran terraza, la vivienda cuenta en planta alta con un dormitorio Ppal. Con vestidor y baño compartimentado, dos dormitorios( niños) en semisuite, lugar para escritorio para 2pc para niños, y hall-biblioteca, en planta baja: livin comedor co hogar, toilete de recepción, habitación de servicio con baño, lavadero con sala de maquinas,cocina comedor y familyroom, galeria semicubierta con parrilla y garage para 2 vehiculos semicubierto.
Tel/Fax 4294-3801
Cel. 11-4199-8200 // Cel. 11-3561-3113
© Arquitectura3s // Copyright 2014 // Buenos Aires // Argentinas
Seguinos en Facebook :Estudio 3s - Arquitectura