Obras

Vivienda Unifamiliar WNV

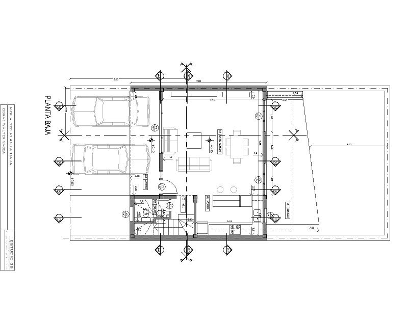
Vivienda en barrio residencial de mármol, desarrollada en 2 plantas.

En pb se sitúa el living comedor con doble orientación, cocina y toilete. En la planta alta se encuentran los dormitorios y el lavadero y un tercer nivel un atelier (altillo).

Tel/Fax 4294-3801
Cel. 11-4199-8200 // Cel. 11-3561-3113
© Arquitectura3s // Copyright 2014 // Buenos Aires // Argentinas
Seguinos en Facebook :Estudio 3s - Arquitectura