Obras

Ampliación Casa DG

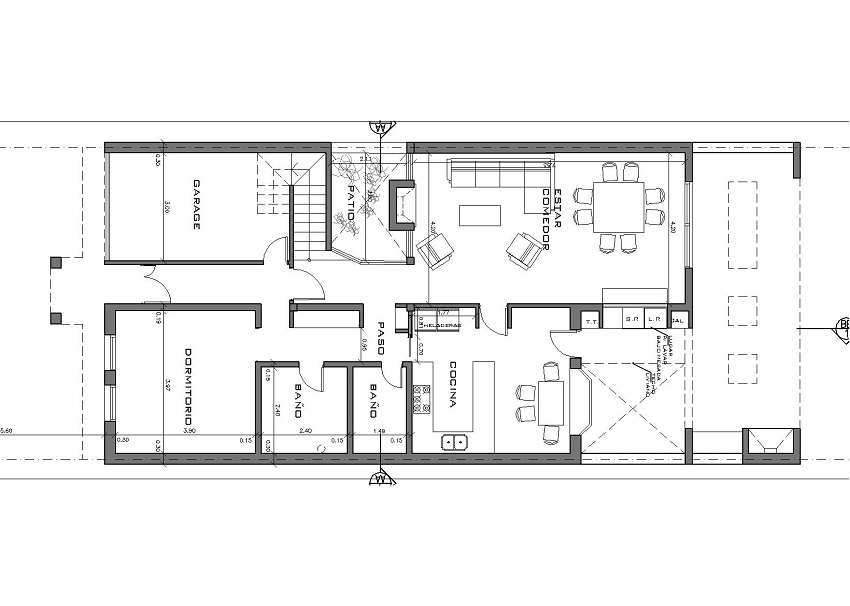
Partiendo de una casa existente de planta baja, se readapta la cocina y se abren patios de iluminación y ventilación para generar mas ambientes iluminados.

Luego se planea una planta alta con 3 dormitorios en suite, una área escritorio y una sala de video.

En la parte que da al jardín se hace una gran galería, que funciona de expansión del living y de quincho.
Tel/Fax 4294-3801
Cel. 11-4199-8200 // Cel. 11-3561-3113
© Arquitectura3s // Copyright 2014 // Buenos Aires // Argentinas
Seguinos en Facebook :Estudio 3s - Arquitectura